Thứ Sáu, 26 tháng 10, 2018

Tư vấn bài trí nội thất căn hộ 17m² tiện nghi cho 2 người

KTS đã tư vấn bài trí nội thất cho căn hộ 17m² trở thành một không gian sống xanh, hiện đại, thoáng mát, đủ cho hai người lớn sinh hoạt.

  • ·        Không thể rời mắt khỏi mẫu bàn ăn mặt đá đầy cảm hứng
  • ·        Gợi ý bàn ăn mạ PVD hiện đại cho căn hộ, chung cư
  • ·        Trang trí nhà bếp với mẫu bàn ăn mạ vàng được nhiều người yêu thích
  • ·        Chọn bàn ăn mạ titan làm sáng bừng không gian nhà bếp 
Chuyên mục thân mến !

Tôi hiện đang sống trong một căn hộ chung cư cũ có diện tích 17 ở trung tâm quận 1 và có nhu cầu cải tạo lại nhà theo hướng hiện đại, thoáng mát. Trong phòng tôi đã có 1 giường ngủ bằng gỗ 1,6 x 2m, phòng có cửa sổ gỗ và có một nhà tắm. Hiện nay căn hộ này cho mẹ tôi và tôi ở cùng nên để giường lớn, do giường đã cố định nên diện tích còn lại khá chật. 

Tại phần không gian còn lại, tôi muốn bố trí một chỗ để bàn làm việc, kệ thanh ngang treo gọn tiết kiệm diện tích, một khu vực để làm bếp cao ráo (chỉ để bếp hồng ngoại đơn và cất chén bát), một tủ lạnh 125l và một tủ quần áo vải. Nếu có thể tôi muốn bố trí vách ngăn để ngăn giữa giường và khu vực còn lại. Tôi 25 tuổi, mệnh Mộc. 

Tôi rất mong được chuyên mục tư vấn bài trí nội thất phù hợp. Chân thành cảm ơn!
Hoàng Mai

 Kiến trúc sư tư vấn:

Tư vấn bài trí nội thất căn hộ 17m² tiện nghi cho 2 người 1
Mặt bằng độc giả gửi

Dựa theo những thông tin mà bạn cung cấp và yêu cầu thiết kế cho căn hộ, chúng tôi xin đưa ra phương án mặt bằng tư vấn để bạn tham khảo.

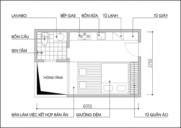
Tư vấn bài trí nội thất căn hộ 17m² tiện nghi cho 2 người 2
 Mặt bằng tư vấn phương án 1

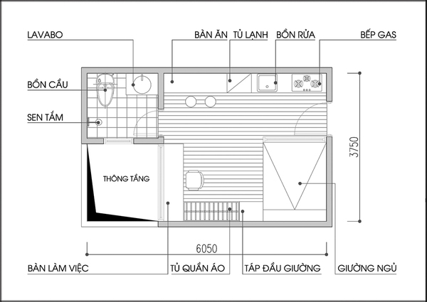
Tư vấn bài trí nội thất căn hộ 17m² tiện nghi cho 2 người 3 Mặt bằng tư vấn phương án 2

Căn hộ của bạn tuy khá khiêm tốn nhưng lại có ưu điểm là 1 góc lớn được tiếp xúc với ánh sáng, vì vậy không khó để bố trí đồ nội thất hợp lý, thoáng đãng mà phù hợp với phong thủy của người mệnh Mộc. Dựa vào yêu cầu và nhu cầu sử dụng của bạn, chúng tôi đưa ra 2 phương án bố trí nội thất để bạn tham khảo.

Với phương án thứ 1, bạn sẽ có 1 hệ tủ bếp dài kèm theo là bàn ăn đặt sát tường bên phải cửa vào giúp tiết kiệm diện tích. Giường ngủ được giữ nguyên vị trí kết hợp với tấm vách mỹ thuật ngăn cách không gian bếp và không gian ngủ tạo cho góc ngủ thoáng mát, hạn chế ám mùi dầu mỡ. Liền kề là táp đầu giường và tủ quần áo, bàn làm việc được ưu tiên đặt cạnh cửa sổ để có 1 không gian làm việc hiệu quả nhất. Sử dụng những đồ nội thất gam màu sáng sẽ giúp cho không gian WC rộng rãi hơn. Cách bố trí này kết hợp cùng với những đồ nội thất tiện nghi sẽ giúp cho căn phòng của bạn rộng ra đáng kể và sinh hoạt được thoải mái hơn.

Phương án thứ 2, chúng tôi tư vấn cách sử dụng và bài trí đồ nội thất theo phong cách Nhật. Ở bên phải từ cửa vào sẽ là hệ thống tủ bếp, kèm theo là tủ để đồ dùng cá nhân, tủ giày. Phía còn lại được đặt 1 tấm phản dài, ngăn cách khoảng không gian giữa bếp và không gian ngủ. Giường ngủ sẽ được thay thế bằng đệm, quanh đó là tủ quần áo và bàn làm việc hướng ra phía cửa sổ tạo không gian thoáng mát, sạch sẽ. Cách bố trí này cũng tạo cho căn hộ có 1 khoảng không gian đi lại dễ dàng, thuận tiện hơn.

Là người mệnh Mộc, bạn nên sử dụng màu nâu làm tone màu chủ đạo, điểm thêm 1 chút xanh lá sẽ giúp cho căn hộ của bạn thêm hài hòa và tinh tế. sử dụng giấy dán tường và những đồ decor xinh xắn sẽ làm cho căn hộ của bạn thêm phong phú và bắt mắt.

Hy vọng với phương án bố trí của Nhà Hay sẽ đáp ứng được tiện nghi cũng như nhu cầu sinh hoạt của bạn và gia đình. Sau đây là một số hình ảnh tham khảo giúp bạn hình dung không gian sống của mình được tốt hơn.

Tư vấn bài trí nội thất căn hộ 17m² tiện nghi cho 2 người 4
Tấm vách CNC ngăn chia không gian với những đường cong uyển chuyển sẽ giúp cho căn hộ đẹp và tiện lợi hơn. 

Tư vấn bài trí nội thất căn hộ 17m² tiện nghi cho 2 người 5
Hệ tủ bếp chữ I tiện lợi cho nhà có diện tích khiêm tốn

Tư vấn bài trí nội thất căn hộ 17m² tiện nghi cho 2 người 6
Bàn ăn liền với bếp sẽ giúp tiết kiệm được diện tích.

Tư vấn bài trí nội thất căn hộ 17m² tiện nghi cho 2 người 7
Giường ngủ bệt tinh tế và sang trọng.

Tư vấn bài trí nội thất căn hộ 17m² tiện nghi cho 2 người 8
Những đồ nội thất gam màu nâu rất hợp cho người mệnh Mộc

Tư vấn bài trí nội thất căn hộ 17m² tiện nghi cho 2 người 9
Sử dụng tủ quần áo hệ cửa trượt sẽ giúp cho không gian có thêm nhiều diện tích hơn.

Tư vấn bài trí nội thất căn hộ 17m² tiện nghi cho 2 người 10
Bàn uống trà nhỏ là gợi ý hay khi bạn sử dụng phản.

Tư vấn bài trí nội thất căn hộ 17m² tiện nghi cho 2 người 11
Sử dụng những đồ decor hay đưa những chậu cây cảnh nhỏ vào trong nhà sẽ giúp cho căn hộ của bạn gần gũi với thiên nhiên hơn.

Tư vấn bài trí nội thất căn hộ 17m² tiện nghi cho 2 người 12
Bàn làm việc được ưu tiên đặt cạnh cửa số để lấy sáng tự nhiên

Tư vấn bài trí nội thất căn hộ 17m² tiện nghi cho 2 người 13
Đồ nội thất với tone màu sáng sẽ gúp cho WC rộng ra đáng kể.


Hãy Comment chuẩn SEO vừa làm tốt cho site của Bạn vừa không bị GOOGLE phạt. Nếu muốn lấy backlink hãy chèn URL không chèn code gắn text link. Biểu tượng hài hướcEmoticon