KTS đã tư vấn cải tạo lại căn hộ từ 3 phòng ngủ xuống còn 2 phòng ngủ, giúp căn hộ trở nên thoáng mát hơn nhưng vẫn đầy đủ công năng sử dụng.
- · Không thể rời mắt khỏi mẫu bàn ăn mặt đá đầy cảm hứng
- · Gợi ý bàn ăn mạ PVD hiện đại cho căn hộ, chung cư
- · Trang trí nhà bếp với mẫu bàn ăn mạ vàng được nhiều người yêu thích
- · Chọn bàn ăn mạ titan làm sáng bừng không gian nhà bếp
Kính chào chuyên mục!
Nhà em hiện tại mua 1 căn hộ có hình dáng và kích thước như file đính kèm, hiện tại là 3 phòng ngủ nhưng em thấy nó hơi bí nên đang muốn thiết kế thành 2 phòng ngủ. Em cũng rất hay theo dõi chuyên mục tư vấn và thấy những căn hộ được thiết kế lại rất hợp lý và vừa mắt nên em gửi thư này mong chuyên mục mình giúp em tư vấn cải tạo lại căn hộ cho hợp lý và đẹp mắt. Rất mong được sự giúp đỡ từ phía chuyên mục và sớm nhận được phản hồi. Em cám ơn rất nhiều!
Chúc chuyên mục ngày càng thành công và có nhiều độc giả.
Ngô Thị Thùy An
Kiến trúc sư tư vấn:
Dựa theo những thông tin mà bạn cung cấp và yêu cầu thiết kế cho căn hộ, chúng tôi xin đưa ra phương án mặt bằng tư vấn để bạn tham khảo.
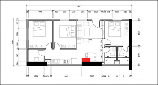
Mặt bằng hiện trạng
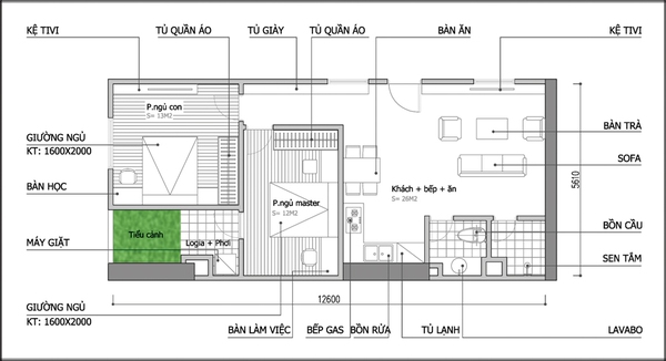
Mặt bằng tư vấn
Ưu điểm căn hộ của bạn là hình khối vuông vức, điều đó sẽ giúp cho việc ngăn chia không gian sống 1 cách dễ dàng, hợp lý. Với mặt bằng cũ, việc thiết kế 3 phòng ngủ trong 1 căn hộ có diện tích 70m2 mà 2 phòng không được tiếp xúc với ánh sáng tự nhiên sẽ không thể đáp ứng được nhu cầu về lý tưởng sống, các không gian ngủ sẽ luôn bị gò ép, thiếu ánh sáng.
Theo yêu cầu mà bạn đưa ra là muốn cải tạo, thiết kế từ 3 phòng ngủ xuống còn 2 phòng ngủ mà khoa học, hợp lý, chúng tôi sẽ đưa ra phương án là bố trí 2 phòng ngủ hướng ra phía ban công để tiếp cận trực tiếp với ánh sáng tự nhiên, giảm bớt 1 khu vệ sinh và bố trí vệ sinh thành 2 không gian khép kín. Không gian còn lại sẽ dành cho bếp, ăn và phòng khách.
Bước vào căn hộ sẽ là khoảng không gian sinh hoạt chung gồm có phòng khách, bếp và ăn được bố trí hợp lý, vệ sinh vẫn được giữ nguyên và được chia thành 2 không gian khép kín (1 bên là tắm và 1 bên là đi vệ sinh). Với diện tích không lớn, bạn nên lựa chọn những bộ sofa có tone màu sáng, sử dụng những bộ bàn ăn hay hệ tủ bếp chữ L nhỏ gọn nhưng tiện nghi, tích hợp đầy đủ các vật dụng dành cho việc nấu nướng sẽ giúp tiết kiệm được diện tích.
Không gian riêng là 2 phòng ngủ được bố trí hướng ra phía ban công giúp lấy sáng tự nhiên. Phòng ngủ master được bố trí những đồ nội thất cơ bản như giường ngủ đôi, tủ quần áo, ban trang điểm và bàn làm việc. Phía ngoài ban công của phòng ngủ master sẽ được bố trí 1 sân phơi nhỏ và sân tiểu cảnh, giúp cho căn phòng thoáng mát, hòa quyện với thiên nhiên. Phòng ngủ con tràn ngập ánh sáng và cũng được bài trí với những đồ nội thất cơ bản như giường ngủ, tủ quần áo, ti vi và bàn học.
Hy vọng với phương án bố trí này sẽ đáp ứng được tiện nghi cũng như nhu cầu sinh hoạt của bạn và gia đình. Sau đây là một số hình ảnh tham khảo giúp bạn hình dung không gian sống của mình được tốt hơn.
Không gian mở giữa phòng khách và ăn sẽ tạo cảm giác rộng rãi hơn.

Sử dụng bộ bàn ghế sofa tone màu sáng sẽ giúp cho căn phòng nhỏ thoáng mát và gọn gàng.

Không gian mở giữa khu bếp và ăn được bố trí gọn gàng, sạch sẽ.

Hệ tủ bếp tiện nghi, tích hợp đầy đủ vật dụng cho bà nội trợ.
Phòng ngủ master với gam màu nhã nhăn, tinh tế.

Phòng ngủ con tràn ngập ánh sáng với những đồ nội thất dễ thương, tinh nghịch.

Nhà vệ sinh được thiết kế hiện đại, thanh lịch.
Nhà vệ sinh được thiết kế hiện đại, thanh lịch.
Ban công được bố trí tiểu cảnh sẽ tạo cho phòng ngủ không gian xanh mát, gần gũi thiên nhiên.
Hãy Comment chuẩn SEO vừa làm tốt cho site của Bạn vừa không bị GOOGLE phạt. Nếu muốn lấy backlink hãy chèn URL không chèn code gắn text link. Biểu tượng hài hướcEmoticon