Với căn nhà có diện tích 20m², KTS đã tư vấn thiết kế một căn nhà hoàn chỉnh với đầy đủ công năng tạo ra một không gian hiện đại và thoáng mát.
- · Không thể rời mắt khỏi mẫu bàn ăn mặt đá đầy cảm hứng
- · Gợi ý bàn ăn mạ PVD hiện đại cho căn hộ, chung cư
- · Trang trí nhà bếp với mẫu bàn ăn mạ vàng được nhiều người yêu thích
- · Chọn bàn ăn mạ titan làm sáng bừng không gian nhà bếp
Kính gửi chuyên mục Nhà Hay,
Tôi có mảnh đất 20m² (mặt tiền 4mx5m). Tôi tính xây nhà 1 trệt, 2 lầu. Tầng trệt thì 1 phòng khách,1 bếp, 1 WC+ nhà tắm. Tầng 1 thì 1 phòng ngủ, 1 WC (ban công nhà tôi có thể đưa ra 90cm). Tầng 2 thì 2 phòng ngủ.
Rất mong KTS tư vấn thiết kế giúp.
Xin cám ơn rất nhiều
Anh Tuấn
Kiến trúc sư tư vấn:
Dựa theo những thông tin mà bạn cung cấp và yêu cầu thiết kế cho ngôi nhà, chúng tôi xin đưa ra phương án mặt bằng tư vấn thiết kế để bạn tham khảo.
Với căn nhà có diện tích là 20m², khó có thể bố trí đầy đủ một công năng hoàn chỉnh. Nhưng điểm cộng cho căn nhà của bạn là khá vuông vắn. Theo yêu cầu và mong muốn của bạn đề ra thì chúng tôi đưa ra phương án tư vấn thiết kế là tầng một là không gian sinh hoạt riêng gồm: phòng khách, ăn và bếp. Vì diện tích hạn hẹp nên để thang xoắn là sự lựa chọn lý tưởng cho căn nhà bạn. Nơi đây tận dụng cầu thang làm khoảng thông tầng lấy ánh sáng cho cả nhà. Tầng hai và tầng ba là không gian sinh hoạt riêng.
Bước vào nhà là không gian sinh hoạt chung với phòng khách và ăn sẽ chung nhau công năng, sử dụng bộ ghế sofa hiện đại làm bàn ăn. Dọc tường phía bên cạnh là khu vực bếp với hệ tủ chữ I áp tường tiết kiệm diện tích. Phía cuối nhà là nhà vệ sinh và khu vực cầu thang. Tạo lối giao thông mạch lạc và thuận tiện. Để tạo cảm giác rộng rãi và thoáng mát bạn nên để tone màu sáng như: trắng, trắng sữa.
Đi lên lầu hai là phòng ngủ master và nhà vệ sinh chung cho cả tầng ba. Phòng ngủ master với cách decor sáng tạo kết hợp với đồ nội thất hiện đại như: Giường, tủ quần áo, bàn làm việc kết hợp trang điểm. Với cách bố trí giao thông ở giữa đi thẳng ra là ban công sẽ tạo lối giao thông mạch lạc và gọn gàng hơn.
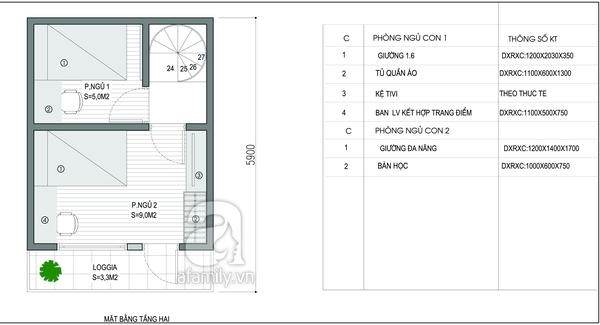
Cuối cùng là tầng ba gồm hai phòng ngủ. Phòng ngủ một có diện tích hạn chế hơn phòng ngủ hai. Phòng ngủ một với diện tích là 5m² chúng tôi xin tư vấn cho bạn là nên chọn giường đa năng kết hợp làm tủ quần áo và bàn học để tiết kiệm diện tích. Với phòng ngủ hai được ưu tiên có ban công và diện tích thoải mái hơn. Căn phòng với cách bố trí như phòng ngủ master đầy đủ đồ nội thất và tạo lối giao thông ở giữa thẳng ra ban công.
Cách bố trí đồ nội thất như vậy sẽ giúp cho không gian sống thêm tiện nghi và trở nên tốt hơn. Ngoài ra bạn cũng không nên trang trí rườm ra, điều đó sẽ làm cho căn phòng thêm chật chội. Bạn có thể sử dụng giấy dán tường hay những đồ decor độc đáo và bắt mắt, nó sẽ làm điểm nhấn giúp cho căn nhà của bạn thú vị và hấp dẫn hơn.
Hy vọng với phương án bố trí này sẽ đáp ứng được tiện nghi cũng như nhu cầu sinh hoạt của bạn và gia đình. Sau đây là một số hình ảnh tham khảo giúp bạn hình dung không gian sống của mình được tốt hơn.

Hệ tủ bếp chữ I với tone màu sáng.

Phòng ngủ master tràn ngập ánh sáng với các decor giản dị.

Phòng ngủ con với tone màu ngộ nghĩnh kết hợp nội thất gọn gàng hiện đại.

Phòng ngủ con với tone màu nhã nhặn lịch sự.

Một góc nhìn cầu thang xoắn với ý tưởng sáng tạo lạ mắt.

Không gian làm việc và cách bài trí đồ nội thất gọn gàng.

Nhà vệ sinh sạch sẽ.
Hãy Comment chuẩn SEO vừa làm tốt cho site của Bạn vừa không bị GOOGLE phạt. Nếu muốn lấy backlink hãy chèn URL không chèn code gắn text link. Biểu tượng hài hướcEmoticon