Thứ Sáu, 26 tháng 10, 2018

Tư vấn thiết kế và bố trí nội thất cho nhà lô rộng 115m²

Với căn nhà có diện tích 115m², KTS đã tư vấn thiết kế cho chủ nhà đưa mọi không gian sinh hoạt lên tầng 2 để tầng 1 có chỗ kinh doanh.

  • ·        Không thể rời mắt khỏi mẫu bàn ăn mặt đá đầy cảm hứng
  • ·        Gợi ý bàn ăn mạ PVD hiện đại cho căn hộ, chung cư
  • ·        Trang trí nhà bếp với mẫu bàn ăn mạ vàng được nhiều người yêu thích
  • ·        Chọn bàn ăn mạ titan làm sáng bừng không gian nhà bếp 
Chuyên mục thân mến !

Tôi tên là Vũ Ngọc Kết. Tôi có dự định xây dựng nhà một trệt, một lầu với diện tích 115.5m² (kích thước 5,5*21m) cho gia đình mình (gồm ông bà, vợ chồng tôi và 2 con gái). Hiện tại trên mảnh đất cũng đã có một căn nhà cấp 4 ở ngay mặt tiền (diện tích khoảng 30m²) do bố mẹ tôi xây từ khoảng 10 năm trước, nhưng vẫn còn khá chắc chắn và thực sự ông bà không muốn phá bỏ.

Vì vậy tôi rất mong muốn được KTS tư vấn tôi nên xây thế nào cho hợp lý, tầng 1 gồm phòng kinh doanh, phòng khách, phòng thờ, bếp và 1 phòng ngủ. Tầng 2 gồm 3 phòng ngủ và nhà vệ sinh. Tôi thích xây căn nhà có vườn, thoáng mát và tràn ngập ánh sáng.

Tôi sinh năm 1962, còn vợ tôi sinh năm 1966. Mong các KTS tư vấn thiết kế nhà tôi sao cho có cách bố trí diện tích thật hợp lý, tiết kiệm và phù hợp phong thủy. Tôi xin chân thành cảm ơn!

Kiến trúc sư tư vấn:

Dựa theo những thông tin mà bạn cung cấp và yêu cầu thiết kế cho ngôi nhà, chúng tôi xin đưa ra phương án mặt bằng tư vấn thiết kế để bạn tham khảo.

Tư vấn thiết kế và bố trí nội thất cho nhà lô rộng 115m² 1
Mặt bằng tư vấn tầng trệt

Tư vấn thiết kế và bố trí nội thất cho nhà lô rộng 115m² 2
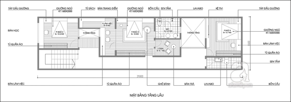
Mặt bằng tư vấn tầng lầu

Mảnh đất của bạn có ưu điểm là diện tích khá rộng rãi và vuông vức, vì vậy để thiết kế ra 1 không gian thoải mái, thoáng mát và tiện nghi là điều rất đơn giản. Theo yêu cầu và mong muốn của bạn đề ra thì chúng tôi đưa ra phương án là giữ nguyên nhà cấp 4 có sẵn và thay đổi lại không gian, tại đó sẽ bố trí phòng kinh doanh và thang lên tầng 2. Phòng thờ, phòng khách, ăn và bếp kết hợp cùng tiểu cảnh sân vườn sẽ được bố trí ở khoảng giữa của ngôi nhà. Khoảng sau cùng sẽ là phòng ngủ nhỏ tràn ngập ánh sáng từ khoảng thông tầng. Lên tầng 2 sẽ được bố trí 3 phòng ngủ rất tiện nghi và thoáng mát.

Bước vào nhà là khoảng không gian xanh mát nhờ tiểu cảnh kết hợp với ánh sáng từ khoảng thông tầng phía trên tạo cảm giác thoải mái và thích thú. Vệ sinh chung được bố trí ngay gần đó nhằm giúp tiết kiệm diện tích và không gian thông thoáng. Đi vào phía trong là không gian sinh hoạt chung gồm có phòng khách và ăn được bố trí nội thất hợp lý và khoa học. Phòng bếp được bố trí ở cạnh sân vườn phía sau giúp làm giảm mùi dầu mỡ và tạo không gian thoáng cho căn nhà. 

Từ bếp có thể đi ra được khoảng vườn phía sau, tạo không gian kết nối mạch lạc và chặt chẽ. Phòng thờ được bố trí ở cạnh đó cũng luôn tràn ngập ánh sáng nhờ khoảng thông tầng phía vườn sau. Khoảng vườn sau có thể bố trí cả sân phơi để có thể tiết kiệm diện tích và thêm được nhiều không gian riêng cho gia đình. Cách bố trí và sắp xếp các không gian sinh hoạt chung như vậy sẽ giúp cho căn nhà luôn tiện nghi và tràn ngập ánh sáng, kết hợp sân vườn tiểu cảnh sẽ làm cho căn nhà luôn thoáng mát và hòa quyện cùng thiên nhiên.

Không gian sinh hoạt riêng gồm có 4 phòng ngủ. Theo yêu cầu của chủ nhà thì phòng ngủ1 sẽ được bố trí ở tầng 1 phía cuối nhà. Căn phòng này sẽ luôn tràn ngập ánh sáng nhờ khoảng thông tầng phía ngoài sân vườn. Căn phòng được sử dụng những đồ nội thất đơn giản như giường ngủ, bàn làm việc, kệ tivi, ghế bành sang trọng, cùng với đó là phòng thay đồ với hệ tủ quần áo và ghế băng dài. Dưới gầm cầu thang sẽ được bố trí kho để chứa đồ nhằm tiết kiệm diện tích. 

Lên tầng 2 sẽ là 3 phòng ngủ được bố trí những đồ nội thất phù hợp với cá tính của mỗi người trong gia đình. Phòng ngủ 2 được bố trí ở khoảng đầu của ngôi nhà, rất tiện nghi và thoáng vì được nhận toàn bộ ánh sáng từ cả 2 phía mặt tiền và khoảng thông tầng phía sau. Phòng ngủ master được bố trí ở khoảng giữa của ngôi nhà với diện tích khá rộng - 15m², kết hợp với phòng làm việc hướng ra khoảng thông tầng tràn ngập ánh sáng rất tiện nghi và sang trọng. 

Ngoài ra căn phòng master còn được bố trí thêm 1 vệ sinh riêng và logia ban công để chủ nhà có thể nghỉ ngơi thư giãn sau những giờ làm việc căng thẳng. Phòng ngủ 4 cũng được sử dụng những đồ nội thất đơn giản như giường ngủ, tủ quần áo kệ ti vi và bàn làm việc. Gia đình bạn đông người, vì vậy chúng tôi sẽ bố trí thêm 1 vệ sinh chung ở khoảng cuối nhà tầng 2, cạnh phòng ngủ 4, điều đó sẽ giúp cho căn nhà việc sinh hoạt của mọi người trong gia đình trở nên thoải mái hơn. Ở tầng 2, hành lang khá dài, tuy nhiên việc sử dụng 2 khoảng thông tầng để ngắt quãng sẽ làm giảm độ hút của lối đi này, tạo nhiều khoảng hở và giúp cho không gian sáng và thoáng hơn.

Chủ nhà sinh năm 1962 là tuổi Dần, mệnh Kim, bạn nên chọn tone màu sáng làm màu chủ đạo cho căn nhà như màu vàng, màu trắng. Ngoài ra bạn có thể bố trí những chậu cây cảnh nhở, hay những đồ decor bắt mắt tọa ấn tượng cho ngôi nhà. 

Hy vọng với phương án bố trí này sẽ đáp ứng được tiện nghi cũng như nhu cầu sinh hoạt của bạn và gia đình. Sau đây là một số hình ảnh tham khảo giúp bạn hình dung không gian sống của mình được tốt hơn.

Tư vấn thiết kế và bố trí nội thất cho nhà lô rộng 115m² 3
 Phòng khách với hệ kính lớn luôn tràn ngập ánh sáng

Tư vấn thiết kế và bố trí nội thất cho nhà lô rộng 115m² 4
Sử dụng những đồ nội thất hiện đại sẽ giúp cho phòng khách trở nên sang trọng.

Tư vấn thiết kế và bố trí nội thất cho nhà lô rộng 115m² 5

Tư vấn thiết kế và bố trí nội thất cho nhà lô rộng 115m² 6
 Khoảng thông tầng phía trên kết hợp cùng sân vườn nhỏ giúp cho không gian sinh hoạt chung trở nên xanh mát

Tư vấn thiết kế và bố trí nội thất cho nhà lô rộng 115m² 7
Bộ bàn ăn với đèn chùm dễ thương

Tư vấn thiết kế và bố trí nội thất cho nhà lô rộng 115m² 8

Tư vấn thiết kế và bố trí nội thất cho nhà lô rộng 115m² 9
 Không gian bếp tiện nghi hướng ra vườn tràn ngập ánh sáng

Tư vấn thiết kế và bố trí nội thất cho nhà lô rộng 115m² 10
Phòng ngủ 1 tràn ngập ánh sáng từ khoảng vườn phía ngoài

Tư vấn thiết kế và bố trí nội thất cho nhà lô rộng 115m² 11Phòng ngủ 2 dành cho con với những đồ nội thất dễ thương

Tư vấn thiết kế và bố trí nội thất cho nhà lô rộng 115m² 12Phòng ngủ master với những đồ nội thất sang trọng hiện đại.

Tư vấn thiết kế và bố trí nội thất cho nhà lô rộng 115m² 13
Phòng ngủ con gái nhỏ với tone màu hồng cá tính.

Tư vấn thiết kế và bố trí nội thất cho nhà lô rộng 115m² 14 Bàn làm việc được ưu tiên đặt ở phía cửa sổ.

Tư vấn thiết kế và bố trí nội thất cho nhà lô rộng 115m² 15Vệ sinh với tone màu sáng rất sang trọng.


Hãy Comment chuẩn SEO vừa làm tốt cho site của Bạn vừa không bị GOOGLE phạt. Nếu muốn lấy backlink hãy chèn URL không chèn code gắn text link. Biểu tượng hài hướcEmoticon